• HOME
  • IMÓVEIS
  • CONTACTOS

Terreno

-

Rio De Mouro

Sintra – Rio de Mouro
ID:120171255-300
Venda
380.000€

Descrição do imóvel

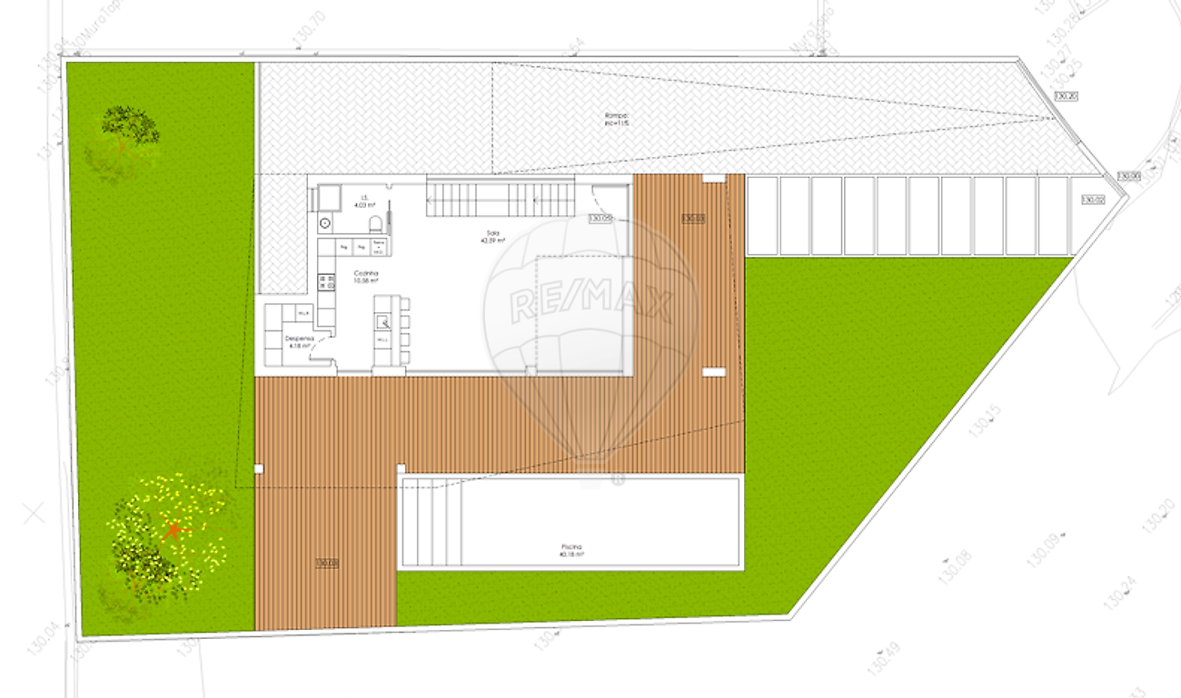
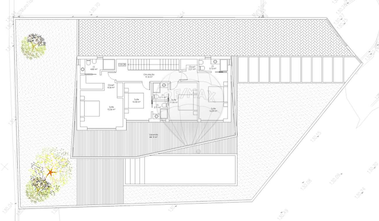
Lote c/610 m² II Projeto Aprovado II Moradia T5 isolada II Piscina II Jardim II Garagem

Lote urbano em Albarraque com 610 m², inserido em zona tranquila e residencial, ideal para quem procura construir uma moradia moderna e personalizada numa localização estratégica entre Sintra e Cascais.

O terreno dispõe de projeto aprovado para moradia T5 isolada, com arquitetura contemporânea, três amplas suites, zonas sociais generosas e piscina privada, pensado para proporcionar conforto, privacidade e qualidade de vida.
Existe ainda a possibilidade de alteração do projeto para uma moradia térrea com cerca de 180 m², ideal para quem privilegia funcionalidade, acessibilidade e uma vivência totalmente ao nível do jardim.

Excelente oportunidade para construção de habitação própria ou investimento, numa zona em crescimento, com bons acessos, proximidade a escolas, comércio e serviços. 

Características específicas:  

  • Superfície total do terreno 610 m² 
  • Superfície mínima à venda 610 m² 
  • Superfície edificável 180 m² 
  • Acesso via urbana 
  • A 3 km do núcleo urbano mais próximo 

 

Situação urbanística:  

  • Terreno Urbano 
  • Viabilidade para residencial unifamiliar (moradias) 
  • 3 andares edificáveis  

Equipamento:  

  • Água 
  • Eletricidade 
  • Saneamento básico 
  • Iluminação 
  • Calçadas 

Localização: 

  • Bons acessos à A5 e A16 
  • Próximo de escolas públicas 
  • Próximo de escolas internacionais, como St. Dominic`s ou St. Julian’s School 
  • Próximo de supermercados e serviços essenciais 
  • Próximo de praias, linha de Cascais ou Sintra 
  • A 7 Km do Centro Histórico de Sintra 
  • A 10 minutos do centro de Cascais  
  • A 25 Km do Aeroporto de Lisboa 
  • Fácil acesso às principais vias e transportes públicos   
  • Ambiente calmo e seguro, ideal para famílias que valorizam a tranquilidade 

Localizado em Albarraque, uma zona residencial cada vez mais procurada, com proximidade a Cascais, Sintra e Lisboa, e bons acessos à A5, IC19 e A16, além de comércio, escolas e serviços nas proximidades.

 **Uma excelente oportunidade para construir uma moradia moderna numa localização estratégica da linha de Sintra** 

Para maisnformações ou visita ao local, contacte.  

<<<<<<<<<<<<<<<<<<<<<<<<<<<<<<<<<<<<<<<<<<<<<<<<<<<<<<<<<<<<<<

Plot of land with 610 m² | Approved Project | Detached house with 5 bedrooms | Swimming pool | Garden | Garage

Urban plot in Albarraque with 610 m², located in a quiet residential area, ideal for those seeking to build a modern and personalized home in a strategic location between Sintra and Cascais.

The land has an approved project for a detached house with 5 bedrooms, with contemporary architecture, three spacious suites, generous social areas and a private swimming pool, designed to provide comfort, privacy and quality of life.

There is also the possibility of changing the project to a single-story house of approximately 180 m², ideal for those who prioritize functionality, accessibility and a living experience entirely at garden level.

Excellent opportunity for building your own home or investment, in a growing area, with good access, proximity to schools, shops and services.

Specific characteristics:

  • Total land area 610 m²
  • Minimum area for sale 610 m²
  • Buildable area 180 m²
  • Urban access
  • 3 km from the nearest urban center

Urban planning situation:

  • Urban land
  • Viability for single-family residential (houses)
  • 3 buildable floors

Equipment:

  • Water
  • Electricity
  • Basic sanitation
  • Lighting
  • Sidewalks

Location:

  • Good access to A5 and A16 highways
  • Close to public schools
  • Close to international schools, such as St. Dominic’s or St. Julian’s School
  • Close to supermarkets and essential services
  • Close to beaches, Cascais or Sintra coastline
  • 7 km from the Historic Center of Sintra
  • 10 minutes from the center of Cascais
  • 25 km from Lisbon Airport
  • Easy access to main roads Roads and public transport
  • Calm and safe environment, ideal for families who value tranquility

Located in Albarraque, an increasingly sought-after residential area, close to Cascais, Sintra and Lisbon, and with good access to the A5, IC19 and A16 highways, as well as shops, schools and services nearby.

**An excellent opportunity to build a modern house in a strategic location on the Sintra line**

For more information or to visit the site, please contact us.

<<<<<<<<<<<<<<<<<<<<<<<<<<<<<<<<<<<<<<<<<<<<<<<<<<<<<<<<<<<<<<

Terrain de 610 m² | Projet approuvé | Maison individuelle 5 chambres | Piscine | Jardin | Garage

Terrain urbain de 610 m² à Albarraque, situé dans un quartier résidentiel calme, idéal pour ceux qui souhaitent construire une maison moderne et personnalisée dans un emplacement stratégique entre Sintra et Cascais.

Le terrain bénéficie d’un permis de construire pour une maison individuelle de 5 chambres, à l’architecture contemporaine, comprenant trois suites spacieuses, de généreux espaces de vie et une piscine privée, conçue pour offrir confort, intimité et qualité de vie.

Il est également possible de modifier le projet pour une maison de plain-pied d’environ 180 m², idéale pour ceux qui privilégient la fonctionnalité, l’accessibilité et une vie entièrement de plain-pied avec jardin.

Excellente opportunité pour construire votre résidence principale ou réaliser un investissement, dans un secteur en pleine expansion, bien desservi et à proximité des écoles, commerces et services.

Caractéristiques spécifiques :

  • Superficie totale du terrain : 610 m²
  • Superficie minimale à vendre : 610 m²
  • Surface constructible : 180 m²

Accès urbain :

  • À 3 km du centre-ville le plus proche

Situation urbanistique :

  • Terrain urbanisé
  • Possibilité de construire des maisons individuelles
  • 3 étages constructibles

Équipements :

  • Eau
  • Électricité
  • Assainissement de base
  • Éclairage
  • Trottoirs

Situation :

  • Accès facile aux autoroutes A5 et A16
  • Proche des écoles publiques
  • Proche des écoles internationales, telles que St. Dominic’s ou St. Julian’s School
  • Proche des supermarchés et des services essentiels
  • Proche des plages, du littoral de Cascais ou de Sintra
  • À 7 km du centre historique de Sintra
  • À 10 minutes du centre de Cascais

À 25 km de l’aéroport de Lisbonne

Accès facile aux grands axes routiers et aux transports en commun

Environnement calme et sûr, idéal pour les familles en quête de tranquillité

Situé à Albarraque, un quartier résidentiel de plus en plus prisé, à proximité de Située à proximité de Cascais, Sintra et Lisbonne, et bénéficiant d’un accès facile aux autoroutes A5, IC19 et A16, ainsi qu’aux commerces, écoles et services, cette maison offre une excellente opportunité de construire une maison moderne dans un emplacement stratégique sur la ligne de Sintra.

Pour plus d’informations ou pour visiter le site, veuillez nous contacter.

<<<<<<<<<<<<<<<<<<<<<<<<<<<<<<<<<<<<<<<<<<<<<<<<<<<<<<<<<<<<<<

Terreno de 610 m² | Proyecto aprobado | Vivienda unifamiliar de 5 dormitorios | Piscina | Jardín | Garaje

Terreno urbano en Albarraque de 610 m², ubicado en una tranquila zona residencial, ideal para quienes buscan construir una vivienda moderna y personalizada en una ubicación estratégica entre Sintra y Cascais.

El terreno cuenta con un proyecto aprobado para una vivienda unifamiliar de 5 dormitorios, con arquitectura contemporánea, tres amplias suites, amplias zonas sociales y piscina privada, diseñada para brindar comodidad, privacidad y calidad de vida.

También existe la posibilidad de transformar el proyecto en una vivienda de una sola planta de aproximadamente 180 m², ideal para quienes priorizan la funcionalidad, la accesibilidad y una experiencia de vida completamente a nivel de jardín.

Excelente oportunidad para construir su propia vivienda o invertir en una zona en crecimiento, con buen acceso y cerca de colegios, comercios y servicios.

Características específicas:

  • Superficie total del terreno: 610 m²
  • Superficie mínima de venta: 610 m²
  • Superficie edificable: 180 m²
  • Acceso urbano:
  • A 3 km del núcleo urbano más cercano

Situación urbanística:

  • Suelo urbano
  • Viabilidad para viviendas unifamiliares (casas)
  • 3 plantas edificables

Equipamiento:

  • Agua
  • Electricidad
  • Saneamiento básico
  • Iluminación
  • Aceras

Ubicación:

  • Buen acceso a las autopistas A5 y A16
  • Cerca de colegios públicos
  • Cerca de colegios internacionales, como el Colegio Santo Domingo o el Colegio Santo Julián
  • Cerca de supermercados y servicios esenciales
  • Cerca de playas, la costa de Cascais o Sintra
  • A 7 km del centro histórico de Sintra
  • A 10 minutos del centro de Cascais
  • A 25 km del aeropuerto de Lisboa
  • Fácil acceso a las carreteras principales y transporte público
  • Entorno tranquilo y seguro, ideal para familias que valoran la tranquilidad

Ubicado en Albarraque, una zona residencial cada vez más solicitada, cerca de Cascais, Sintra y Lisboa, con buen acceso a las autopistas A5, IC19 y A16, además de comercios, colegios y servicios cercanos.

**Excelente oportunidad para construir una casa moderna en una ubicación estratégica en la línea de Sintra**

Para más información o visitar la propiedad, contáctenos.

;ID RE/MAX: 120171255-300

Patricia Almeida Costa

Consultora Imobiliária
T. +351 916 855 444
E. pacosta@remax.pt
Contactar Agente

Detalhes do imóvel

Area Bruta:

Area Útil:

Ano de Construção:

610m2

NaNm2

N/A

Quartos:

WCs:

Estado de Conservação:

N/A

Ver mais fotos

Imóveis Semelhantes