Terreno

-

Lourinhã

Lourinhã – Lourinhã e Atalaia
ID:124181028-171
Venda
395.000€

Descrição do imóvel

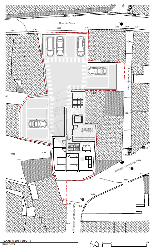
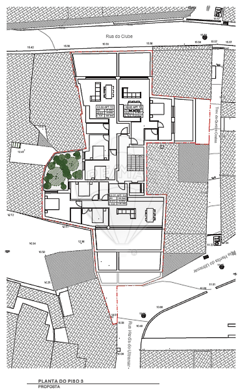
Lote urbano com 517 m2 para construção de 12 fogos, no centro da Lourinhã.
Excelente localização para construção de edifício de habitação multifamiliar, sob a forma de condomínio.
Para este prédio foi autorizado um PIP (Pedido de Informação Prévia) que integra uma área de ocupação de 467 m2, uma área total de construção de 2.400 m2, 2 pisos + 1 recuado, um intermédio e cave.
Dispõe de um pré-projeto de arquitetura que contempla a construção de 12 apartamentos, tipologia T3, T2 e T1, todos com amplas varandas, elevador e lugares de estacionamento (1 a 2 por apartamento).
Todas as infraestruturas disponíveis no local.
Sito no prestigiado centro histórico da Lourinhã, junto ao Museu, com principais serviços e comércio na vizinhança e praias da região a alguns minutos. Vistas desafogadas e excelente exposição solar, com 2 acessos viários.
Enquadrado na zona ARU (Área de Reabilitação Urbana) da Lourinhã, beneficia portanto de inúmeras vantagens fiscais e regulamentares já aprovadas.
Mais informações sob consulta.
Excelente oportunidade de investimento, em zona de franca expansão e crescimento.

;ID RE/MAX: 124181028-171

José Patrício

Consultor Imobiliário
T. +351 913 239 669
E. jmpatricio@remax.pt
Contactar Agente

Detalhes do imóvel

Area Bruta:

Area Útil:

Ano de Construção:

517m2

NaNm2

1976

Quartos:

WCs:

Estado de Conservação:

Para Obras

Ver mais fotos

Imóveis Semelhantes