Prédio

-

Loulé

Loulé – São Clemente
ID:120141119-62
Venda
1.600.000€

Descrição do imóvel

Este edifício, recentemente restaurado no exterior, oferece uma excelente
oportunidade de investimento, seja para habitação própria ou para arrendamento.
Com a fachada renovada e melhorias estruturais significativas, proporciona conforto e eficiência energética. 

Características do Prédio 

Exterior totalmente renovado:  

  • Impermeabilização e isolamento com capoto 
  • Guarda-corpos em ferro 
  • Portas e janelas em PVC com vidros duplos 
  • Estores elétricos 

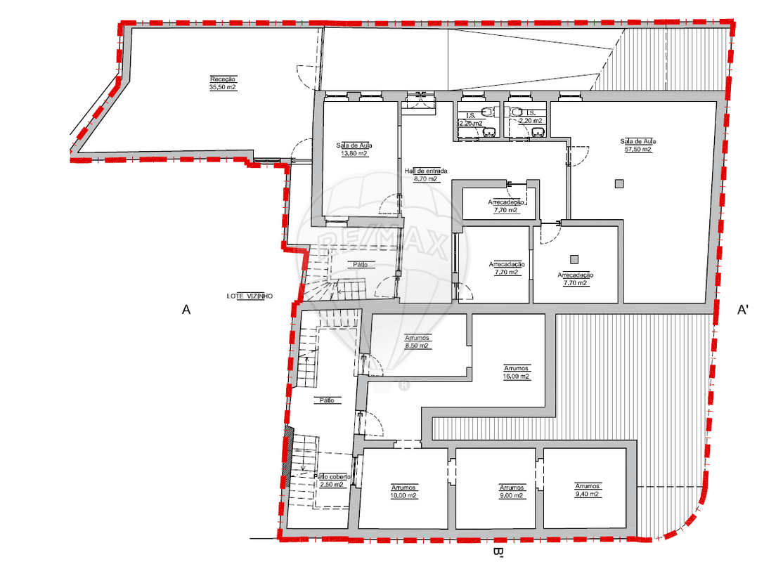
Distribuição Interior:
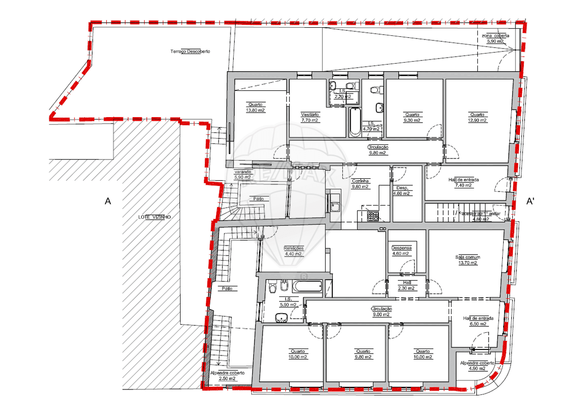
1º Andar (T3 e T4) – em fase de acabamentos  

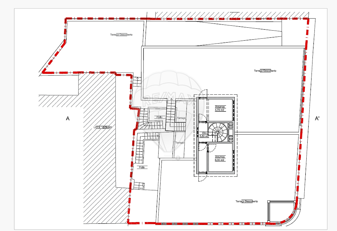
  • 90 m² de terraço privado para cada imóvel 
  • Pré-instalação de ar condicionado 
  • Pré-instalação para termoacumulador ou termossifão 
  • Pré-instalação de bancadas/BBQ no terraço 
  • Lavandaria e chuveiro no terraço 

 Rés-do-chão (T3 + T3)  

  • No R/C direito, terraço de aproximadamente 30 m² com BBQ 

Cave (T3 + T1) 

Infraestruturas Renovadas:  

  • Canalização e eletricidade novas nos rés-do-chão e 1º andares 
  • Remodelação do 1º esquerdo em fase final 

Situação Legal:  

  • A propriedade horizontal encontra-se aprovada pela Câmara Municipal, faltando apenas a entrega do respetivo projeto de especialidades para conclusão do processo.

Este prédio é uma excelente opção para quem procura um imóvel pronto a rentabilizar, com unidades espaçosas, terraços privativos e acabamentos modernos. Se precisar de mais informações ou quiser agendar uma visita, estou à disposição! 

*** 

This partly restored modernist building offers an excellent investment opportunity, both
for personal housing and rental. With a renovated facade and significant
structural improvements, it provides comfort and energy efficiency. 

Building Features Fully renovated exterior: 

Waterproofing and insulation with capoto 

Iron railings 

PVC doors and windows with double glazing 

Electric shutters 

Interior Layout: 1st Floor (T3 and T4) – finishing stage 

90 m² private terrace for each unit 

Pre-installation for air conditioning 

Pre-installation for water heater or thermosiphon 

Pre-installation for countertops/BBQ on the terrace 

Laundry and shower on the terrace 

 Ground Floor (T3 + T3) 

Approximately 30 m² terrace with BBQ for one of the units 

Basement (T3 + T1) 

 Renovated Infrastructure: 

New plumbing and electricity on the ground and first floor 

Remodeling of one of the 1st floor units in the final stage 

 Legal Situation: 

The condominium has been approved by the City Council, with only the submission of the respective specialized project remaining to complete the process.

This property is an excellent option for those looking for ready-to-be-rented flats,
with spacious units, private terraces, and modern finishes.  

I am at your disposal in case you need further information or want to
schedule a visit.  

;ID RE/MAX: 120141119-62

Pedro Cavalheiro

Consultor Imobiliário
T. +351 962 445 217
E. pcavalheiro@remax.pt
Contactar Agente

Detalhes do imóvel

Area Bruta:

Area Útil:

Ano de Construção:

354m2

684,8m2

1956

Quartos:

WCs:

Estado de Conservação:

17

N/A

Ver mais fotos

Imóveis Semelhantes