• HOME
  • IMÓVEIS
  • CONTACTOS

Moradia

-

T3

Loulé

Loulé – São Clemente
ID:120141132-28
Venda
1.290.000€

Descrição do imóvel


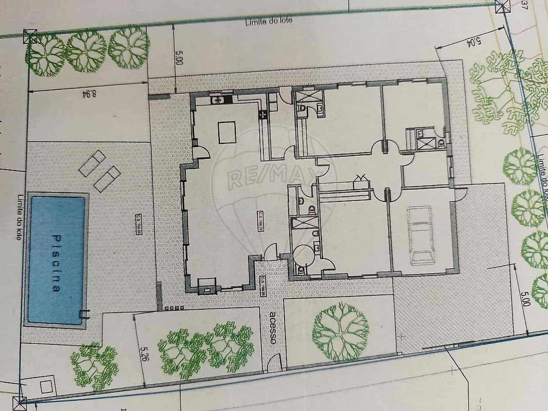
Bonita moradia térrea em fase de acabamentos, localizada numa zona privilegiada de Almancil, inserida num lote de 890 m² e distinguindo-se pela qualidade dos materiais e pelo conforto que oferece.

A propriedade dispõe de uma ampla sala em open space, com lareira, integrada com uma cozinha moderna totalmente equipada, criando um ambiente funcional e luminoso. Conta com três quartos espaçosos, todos com roupeiros embutidos e casas de banho privativas, garantindo privacidade e conforto.

No exterior, encontra-se um agradável terraço coberto, piscina e um lote totalmente vedado. A moradia inclui ainda garagem, WC social, ar condicionado, persianas elétricas e piso radiante nas casas de banho. Está ligada à rede pública de água e esgotos.

Uma excelente oportunidade para habitação permanente ou investimento, numa das zonas mais procuradas do Algarve. 


Beautiful single-storey villa currently in the finishing stages, located in a prime area of Almancil, set on an 890 sqm plot and offering high-quality finishes throughout.

The property features a large open-plan living area with a fireplace and a fully equipped modern kitchen, creating a bright and welcoming space. It includes three spacious bedrooms, all with built-in wardrobes and en-suite bathrooms, ensuring maximum comfort and privacy.

Outside, the villa offers a covered terrace, swimming pool, and a fully fenced plot. Additional features include a garage, guest WC, air conditioning, electric blinds, and underfloor heating in the bathrooms. The property is connected to mains water and sewage.

An excellent choice for a permanent residence or investment in one of the Algarve’s most sought-after locations. 


Magnifique maison de plain-pied en cours de finition, située dans un quartier prisé d’Almancil, sur un terrain de 890 m², offrant des prestations de qualité et un excellent confort de vie.

Elle se compose d’un vaste séjour en open space avec cheminée, ouvert sur une cuisine moderne entièrement équipée, créant un espace lumineux et convivial. La maison dispose de trois chambres spacieuses, toutes avec placards intégrés et salles de bains privatives.

À l’extérieur, vous trouverez une terrasse couverte, une piscine et un terrain entièrement clôturé. La propriété comprend également un garage, des toilettes invités, la climatisation, des stores électriques et un chauffage au sol dans les salles de bains. Elle est raccordée aux réseaux d’eau et d’assainissement.

Une opportunité idéale pour une résidence principale ou un investissement dans l’une des zones les plus recherchées de l’Algarve. 

;ID RE/MAX: 120141132-28

José Martins

Consultor Imobiliário
T. +351 917 230 620
E. jbmartins@remax.pt
Contactar Agente

Detalhes do imóvel

Area Bruta:

Area Útil:

Ano de Construção:

896m2

230m2

2026

Quartos:

WCs:

Estado de Conservação:

3

3

N/A

Ver mais fotos

Imóveis Semelhantes