• HOME
  • IMÓVEIS
  • CONTACTOS

Apartamento

-

T1

Quarteira

Loulé – Quarteira
ID:120141119-50
Venda
398.000€

Descrição do imóvel

Prédio em construção a 600m da praia de Quarteira 

Com apenas três pisos em localização privilegiada. 

Excelente oportunidade para investidores ou para quem deseja viver perto do mar. 

A proximidade da praia, restaurantes e todo o tipo de serviços, torna este imóvel
altamente atrativo tanto para residência quanto para arrendamento. 

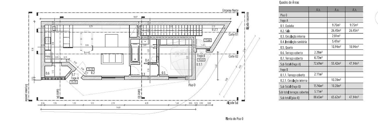
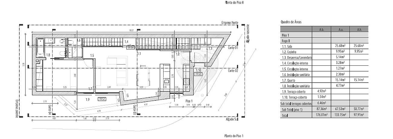
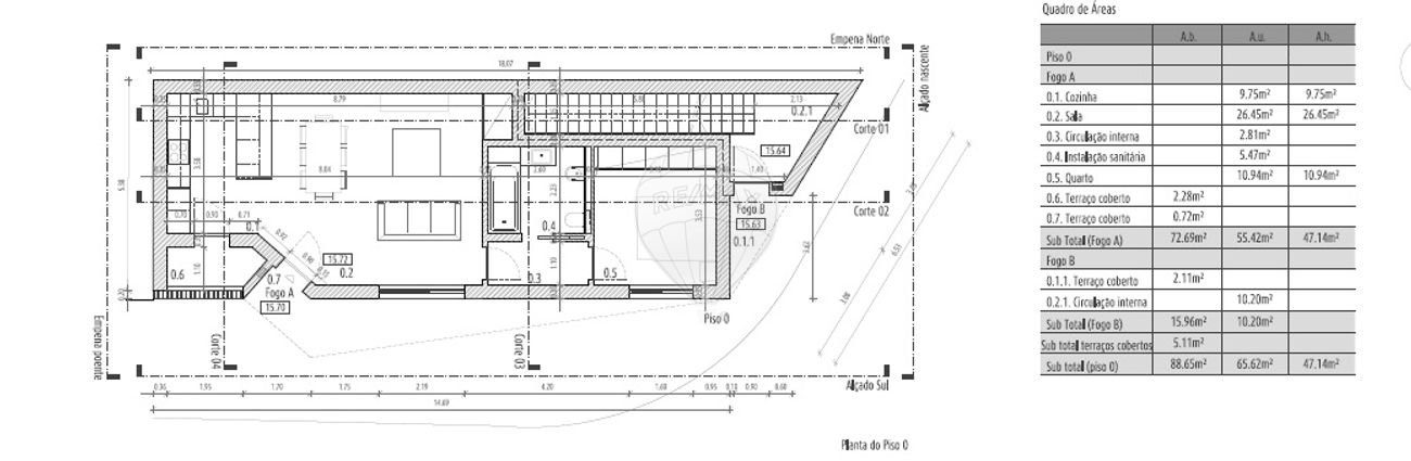
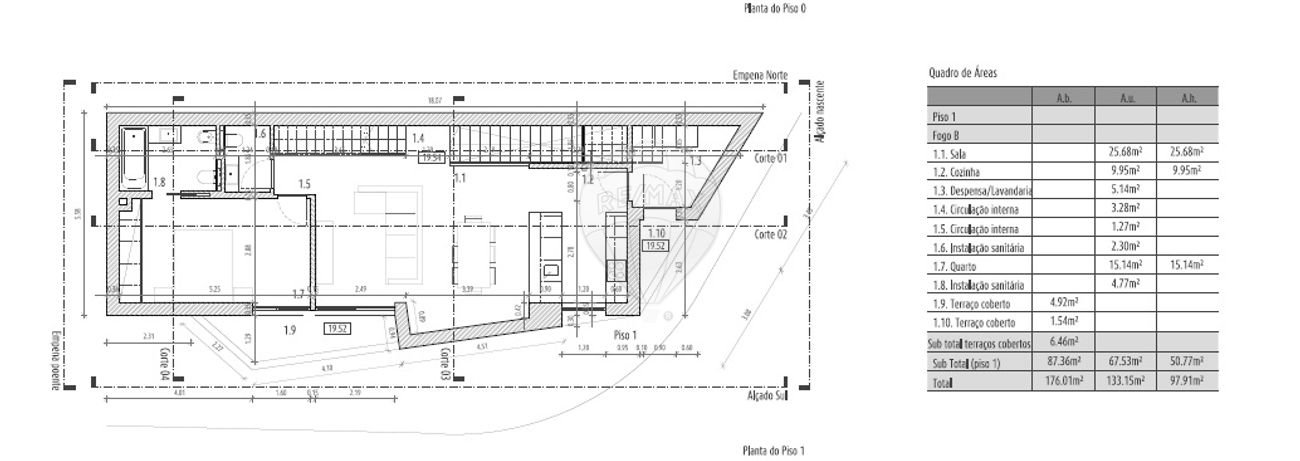
Primeiro andar: 

Área total de 176,01 m²; 

-Apartamento de tipologia T1+1 

-Sala comum num conceito “open space” com Kitchenette; 

-Quarto com casa de banho privativa, garantindo privacidade e conforto; 

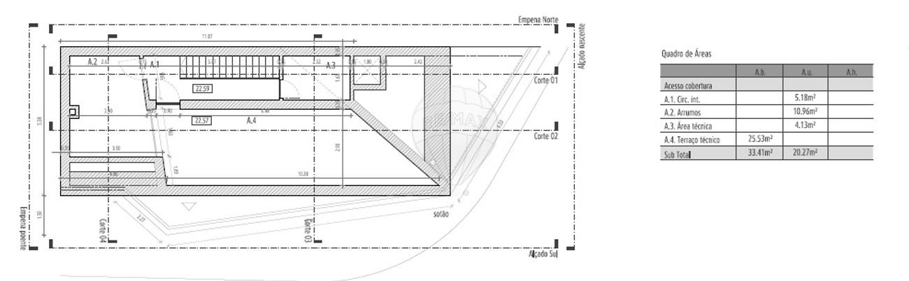
-Quarto com casa de banho no piso do terraço superior. 

-Zona de arrumos com 10,96 m2, proporcionando espaço extra para arrumação. 

-Terraço de uso exclusivo com cerca de 25m2. 

-Chão aquecido nas duas casas de banho. 

-Pré instalação de: 

Ar-condicionado; 

Painel solar; 

Jacuzzi 

Por estar em fase de construção este imóvel tem como benefício a pessoalização dos acabamentos ao gosto do comprador. 

Não perca a oportunidade de visitar.  

***

Building under construction, 600m from Quarteira beach

Three-storey building in a privileged location.

Would you like to live close to the sea? Or are you looking for opportunities to invest?
We have an excellent proposal for you!

Its proximity to the beach, restaurants and other services makes this property
highly attractive for both using it as your own house and for rental.

Duplex

Total surface area: 176 m2

– Typology T1+1

– Open space living room with kitchenette

– 1 bedroom with ensuite bathroom for privacy and comfort

– Gest bathroom

– 1 bedroom and terrace on the roof top floor

– 11 m2 pantry and laundry area

– Terrace for exclusive use, approx. 25 m2

– Heated floor in both bathrooms

– Preinstallation of:

air conditioning

solar panel

jacuzzi

 

Building still in construction phase, which allows for bespoke finishing works and
materials.

We very much look forward to your visit.

;ID RE/MAX: 120141119-50

Pedro Cavalheiro

Consultor Imobiliário
T. +351 962 445 217
E. pcavalheiro@remax.pt
Contactar Agente

Detalhes do imóvel

Area Bruta:

Area Útil:

Ano de Construção:

NaNm2

176m2

2026

Quartos:

WCs:

Estado de Conservação:

1

1

Novo

Ver mais fotos

Imóveis Semelhantes