Para Arrendamento II Moradia T3 II Arquitetura Contemporânea II Bicesse/Manique
*Em breve fotos profissionais.
Moradia T3, construida em 2023 de linhas modernas que traduzem elegância. Cada detalhe foi idealizado para que cada momento seja vivido em armonia, com conforto, sofisticação e privacidade.
Localizada em Manique de Baixo, uma zona calma a poucos minutos da A5.
Características em Destaque:
- Master suite com varanda e vista desafogada3
- Quartos amplos com uma excelente luminosidade
- Sala de estar em open space com acesso direto ao jardim
- Cozinha de alta qualidade, totalmente equipada e integrada
- Materiais de construçáo premium
- Eficiência energética, climatização completa, janelas de isolamento térmico e acústico
- 3 casas de banho modernas
- Estacionamento privativo
- Jardim exterior perfeito para momentos de lazer ou convívio
- Classe energética: A+
Localização Privilegiada:
- Situada num bairro residencial de prestígio
- Próximo de escolas internacionais
- comércio selecionado
- A 5m da A5 Lisboa/Cascais
- A 10m das praias da linha de Cascais
- A 40m do Aeroporto de Lisboa
Características Específicas:
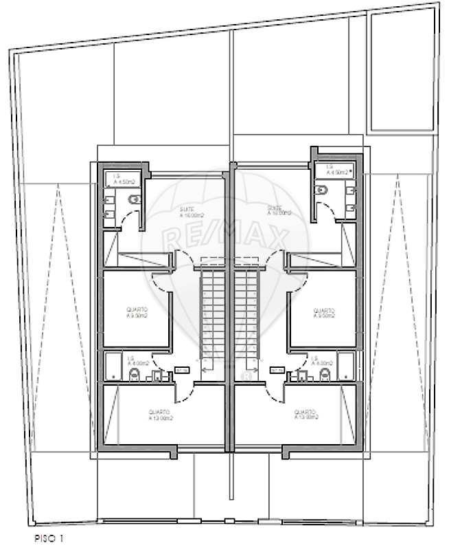
- Moradia geminada T3
- 120 m² área bruta, 110 m² úteis
- Lote de 185 m²
- 3 casas de banho
- Lugar de garagem incluído
- Bom estado
- Armários embutidos
- Construído em 2023
- Cozinha equipada
Equipamento:
Esta moradia oferece uma combinação perfeita entre tranquilidade e centralidade, proporcionando qualidade de vida e acessos rápidos.
Uma oportunidade única para quem procura um estilo de vida sofisticado, contemporâneo e equilibrado.
<<<<<<<<<<<<<<<<<<<<<<<<<<<<<<<<<<<<<<<<<<<<<<<<<<<<<<<<<<<<<<
For Rent II 3 Bedroom House II Contemporary Architecture II Bicesse/Manique
3-bedroom house, built in 2023 with modern lines that convey elegance. Every detail was designed so that every moment can be lived in harmony, with comfort, sophistication and privacy.
Located in Manique de Baixo, a quiet area just minutes from the A5 motorway.
Key Features:
- Master suite with balcony and unobstructed views
- Spacious bedrooms with excellent natural light
- Open-plan living room with direct access to the garden
- High-quality, fully equipped and integrated kitchen
- Premium construction materials
- Energy efficiency, complete air conditioning, thermal and acoustic insulation windows
- 3 modern bathrooms
- Private parking
- Perfect outdoor garden for leisure or socializing
- Energy class: A+
Privileged Location:
- Located in a prestigious residential neighborhood
- Close to international schools
- Selected shops
- 5m from the A5 Lisbon/Cascais highway
- 10m from the beaches of the Cascais coastline
- 40m from Lisbon Airport
Specific Features:
- Semi-detached 3-bedroom house
- 120 m² gross area, 110 m² usable area
- 185 m² plot
- 3 bathrooms
- Parking space included
- Good condition Built-in wardrobes
- Built in 2023
- Equipped kitchen
Equipment:
This house offers a perfect combination of tranquility and centrality, providing quality of life and quick access.
A unique opportunity for those seeking a sophisticated, contemporary and balanced lifestyle.
<<<<<<<<<<<<<<<<<<<<<<<<<<<<<<<<<<<<<<<<<<<<<<<<<<<<<<<<<<<<<
À louer II Maison 3 chambres II Architecture contemporaine II Bicesse/Manique
Maison de 3 chambres, construite en 2023, aux lignes modernes et élégantes. Chaque détail a été pensé pour un confort optimal, une intimité préservée et une harmonie parfaite.
Située à Manique de Baixo, quartier calme à quelques minutes de l’autoroute A5.
Caractéristiques principales :
- Suite parentale avec balcon et vue dégagée
- Chambres spacieuses et lumineuses
- Séjour ouvert avec accès direct au jardin
- Cuisine haut de gamme, entièrement équipée et intégrée
- Matériaux de construction de qualité supérieure
- Efficacité énergétique optimale, climatisation intégrale, fenêtres à isolation thermique et acoustique
- 3 salles de bains modernes
- Parking privé
- Jardin extérieur idéal pour la détente et les moments conviviaux
- Classe énergétique : A+
Situation privilégiée :
- Située dans un quartier résidentiel prestigieux
- Proche des écoles internationales
- Commerces de proximité
- À 5 m de l’autoroute A5 Lisbonne/Cascais
- À 10 m des plages de la côte de Cascais
- À 40 m de l’aéroport de Lisbonne
Caractéristiques spécifiques :
- Maison mitoyenne de 3 chambres
- Surface habitable : 120 m², surface utile : 110 m²
- Terrain : 185 m²
- 3 salles de bains
- Place de parking incluse
- Bon état
- Placards intégrés
- Année de construction : 2023
- Cuisine équipée
Équipements :
Cette maison offre une combinaison parfaite Un havre de paix et de centralité, offrant une qualité de vie exceptionnelle et un accès rapide aux services.
Une opportunité unique pour ceux qui recherchent un style de vie raffiné, contemporain et équilibré.
<<<<<<<<<<<<<<<<<<<<<<<<<<<<<<<<<<<<<<<<<<<<<<<<<<<<<<<<<<<<<<
;ID RE/MAX: 120171255-306